
TO Evi
Yer: İstanbul, Türkiye
Kategori: Konut
Tarih: 2018 – 2022
İnşaat Alanı: 1.250 m2
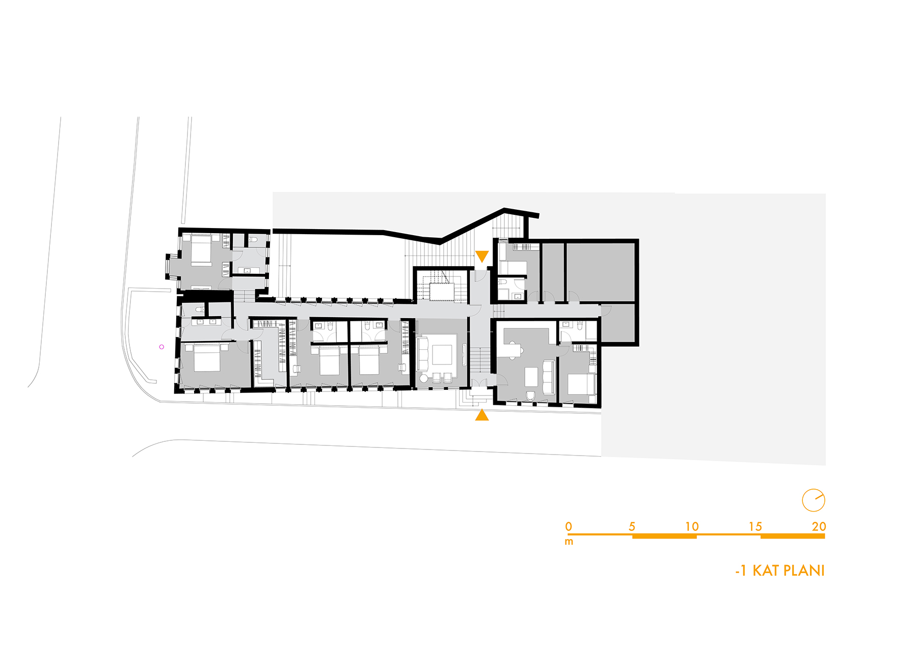
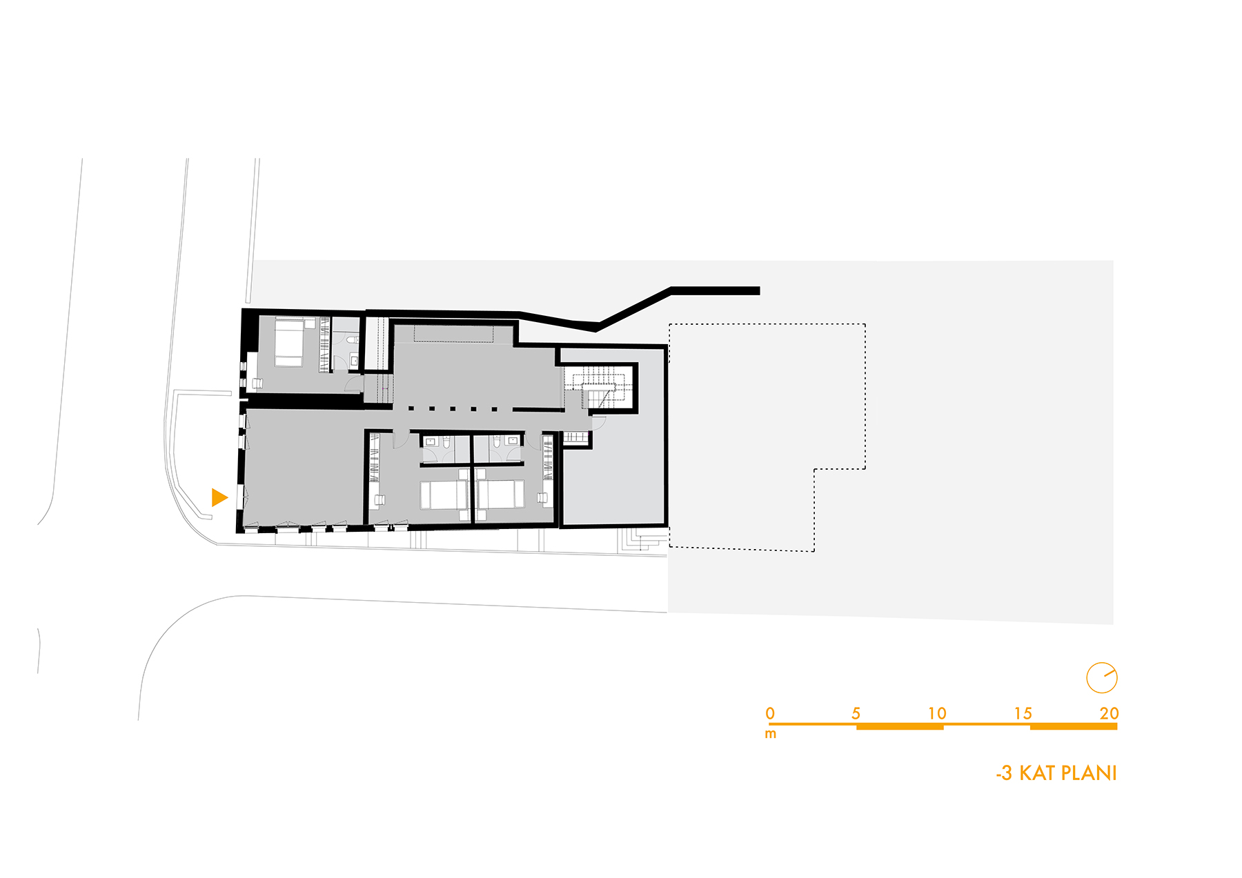
TO Evi Boğaziçi’nin tarihi dokusu ve manzarası ile ön plana çıkan Arnavutköy semtinde konumlanmaktadır. Proje, eğimli bir arazide yer alan iki ahşap tarihi yapı ve bunların arasında bulunun 1960’lı yıllara ait yığma bir yapının birbirlerine eklemlenmesi ile oluşmaktadır. Arazinin belirgin eğiminden kaynaklanan kot farklarında sıralanmış bir dizi açık teras ve avlu bir omurga işlevi gören kesintisiz bir merdiven yapısı ile dış mekânda birbirlerine bağlanmaktadır. Cephe tasarımı, projede bulunan tarihi binaların pencere açıklığı göz önünde bulundurulup geleneksel mimarinin belirgin malzemelerinden olan aşı boyası ahşap kaplama ve küfeki taşı kullanılarak çağdaş bir tasarım dili ile şekillenmiştir. Üç binanın birleşmesi ile oluşun bu yapı kitlesi yatayda iki farklı kullanıcıya hizmet verecek şekilde tasarlanmıştır. Üstteki konut biriminin giriş katında boğaza hâkim geniş bir teras, salon ve bir mutfak bulunmaktadır. Bir alt katında ise dinlenme alanları ve ikincil mekanlar yer almaktadır. Alttaki konut birimine arazide alt kotta bulunan tarihi binadan girilmektedir. İçe dönük bir yaşamın kurgulandığı giriş katında iç avlu, salon, dinlenme alanları ve mutfak bulunmaktadır. Alt katta ise alt bahçeye bakan bir oturma odası ve ikincil mekanlar yer almaktadır.












