
AJ Evi
Yer: İstanbul, Türkiye
Tarih: 2020
Kategori: Konut
İnşaat Alanı: 350 m2
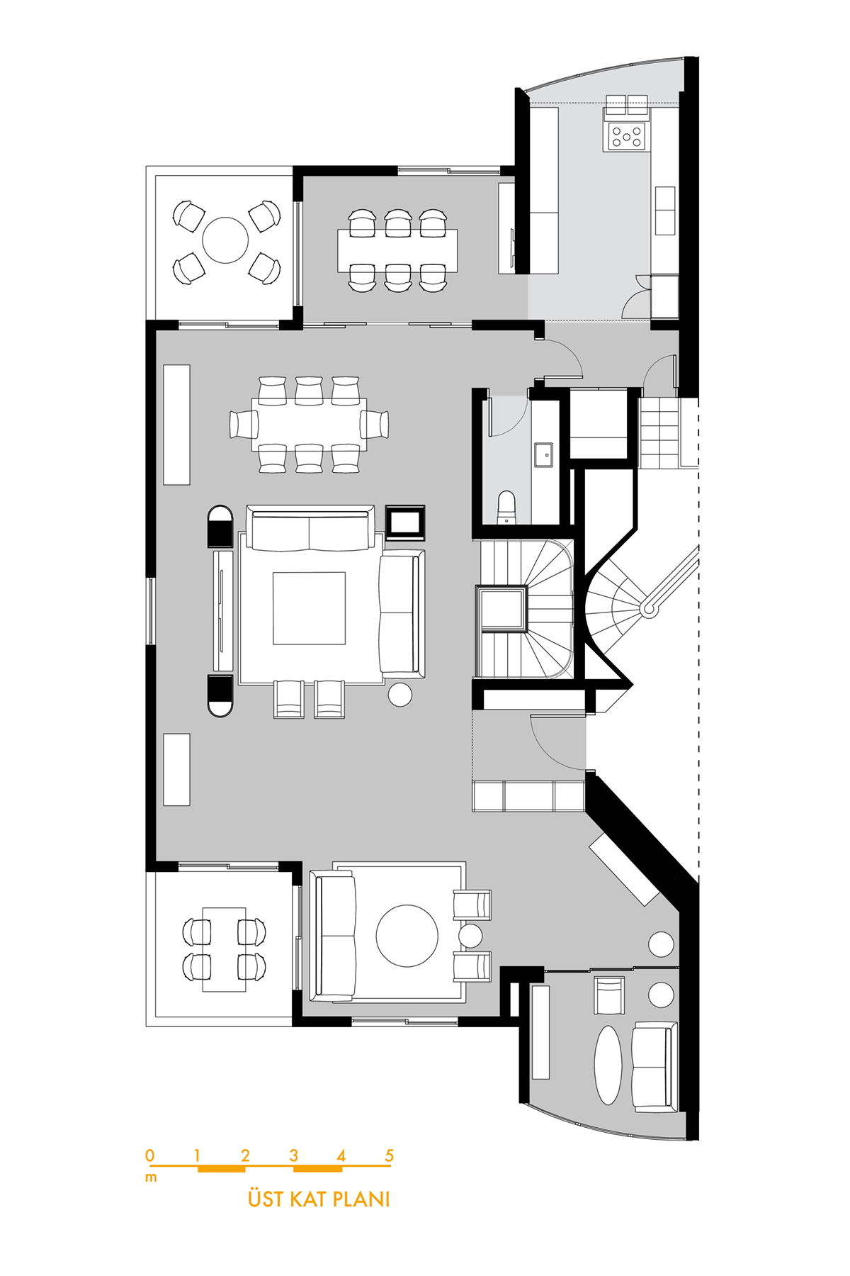
AJ Evi, Ulus’ta çatı dubleksi bir dairenin yenilenmesini kapsayan bir iç mimari projesidir. Proje programı, üst katta manzaraya hâkim terasın bulunduğu yaşam ve alt katta dinlenme alanlarının organize edildiği iki kata yayılmıştır. Geniş iç hacimlerin akışkan bir plan kurgusu ile düzenlendiği projede, yaşam birimleri gerektiğinde birbirlerinden hareketli bölücü elemanlar ile ayrılmakta ve böylelikle istenildiğinde kullanıcıya kademelendirilmiş mahremiyet olanağı sunmaktadır. Kullanıcının içinde yaşamak istediği atmosfer göz önünde bulundurulduğunda, projede doğal ışığın mekân içindeki yayılımı, pastel renk tonları, ahşap, bronz ve bakır gibi soğuk ve sıcak malzemelerin bir arada kullanımı göz önünde bulundurularak dengeli ve dingin bir mekân elde edilmiştir.











